Patrové domy

Domů ›   Realizace   ›   Patrové domy

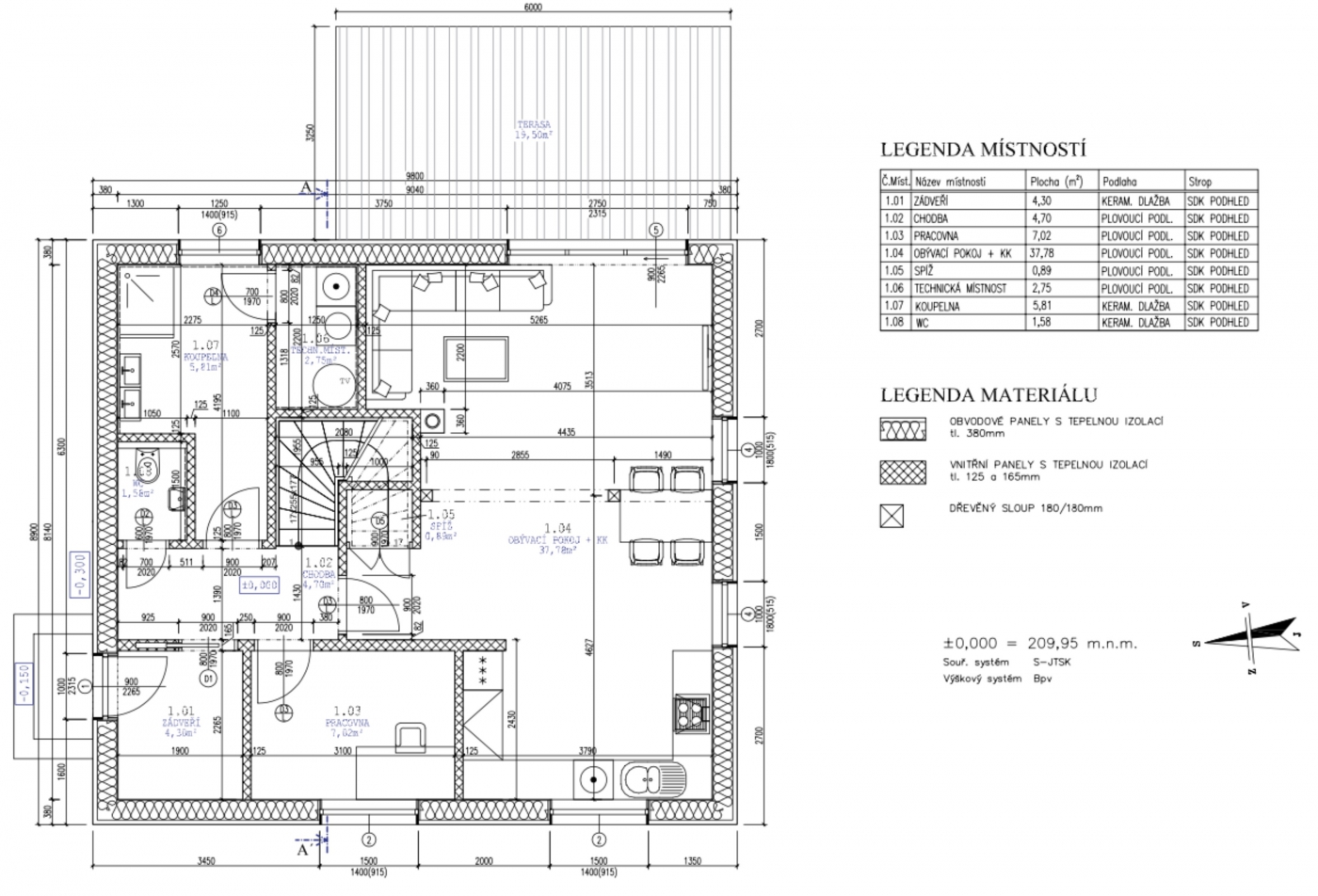
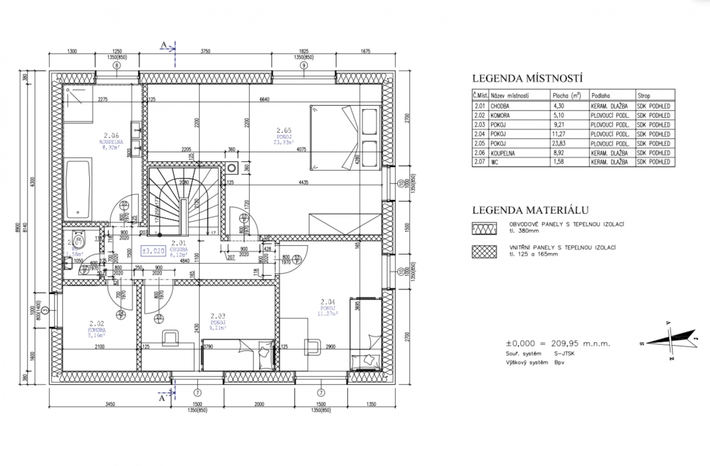
Dřevostavba patrová Mělník 2021 Dřevostavba patrová Mělník 2021 Tato dřevostavba se nachází přímo ve městě, ale je situována do jeho klidnější části. Zákazník si přál postavit pasivní dřevostavbu s dvougaráží. Dřevostavba je tedy osazena technologiemi tzn. rekuperace a fotovoltaika a v rámci ekologie zpravovává i šedou vodu z akumulační nádrže. V rámci zakázky byly zákazníkovi zhotoveny i všechny zpevněné pochozí plochy a plot.

    +420 603 449 540