Patrové domy

Domů ›   Realizace   ›   Patrové domy

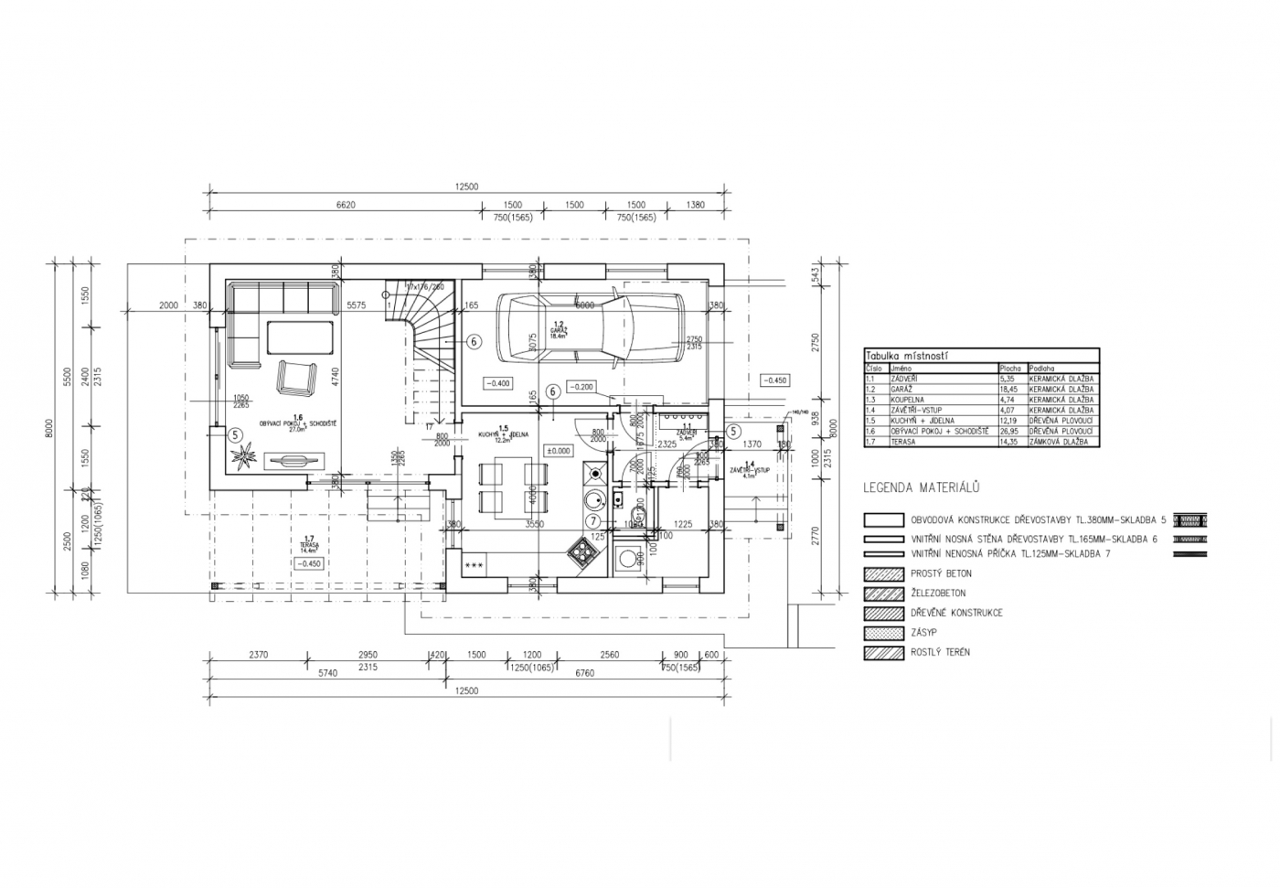
Dřevostavba patrová Litoměřice 2019 Dřevostavba patrová Litoměřice 2019 Tato klasická dvoupatrová dřevostavba vyrostla v klidné části Litoměřic mezi stávající zástavbou. Aby mezi stávající domy zapadl, volil architecht podobný a nerušivý styl. Jedná se o pohodlnou a klidnou dřevostavbu, kterou si nechala jeho zákaznice zhotovit pro sebe a počítá se v něm s návštěvami již dospělých dětí a vnoučat. Protože pozemek původně sloužil jako zahrada s chatou, byli na něm již vzrostlé stromy a keře, takže bylo potřeba jen pár úprav pozemku po výstavbě a z obývacího pokoje se tak otevřel velice krásný výhled do zahrady. V podkroví se pak zákaznice těší ještě krásnému výhledu na České Středohoří.

    +420 603 449 540