Patrové domy

Domů ›   Realizace   ›   Patrové domy

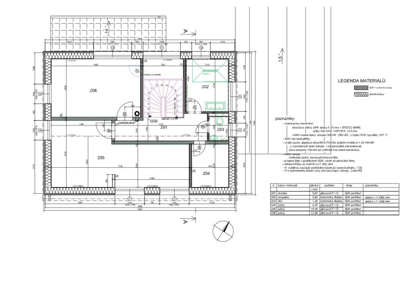
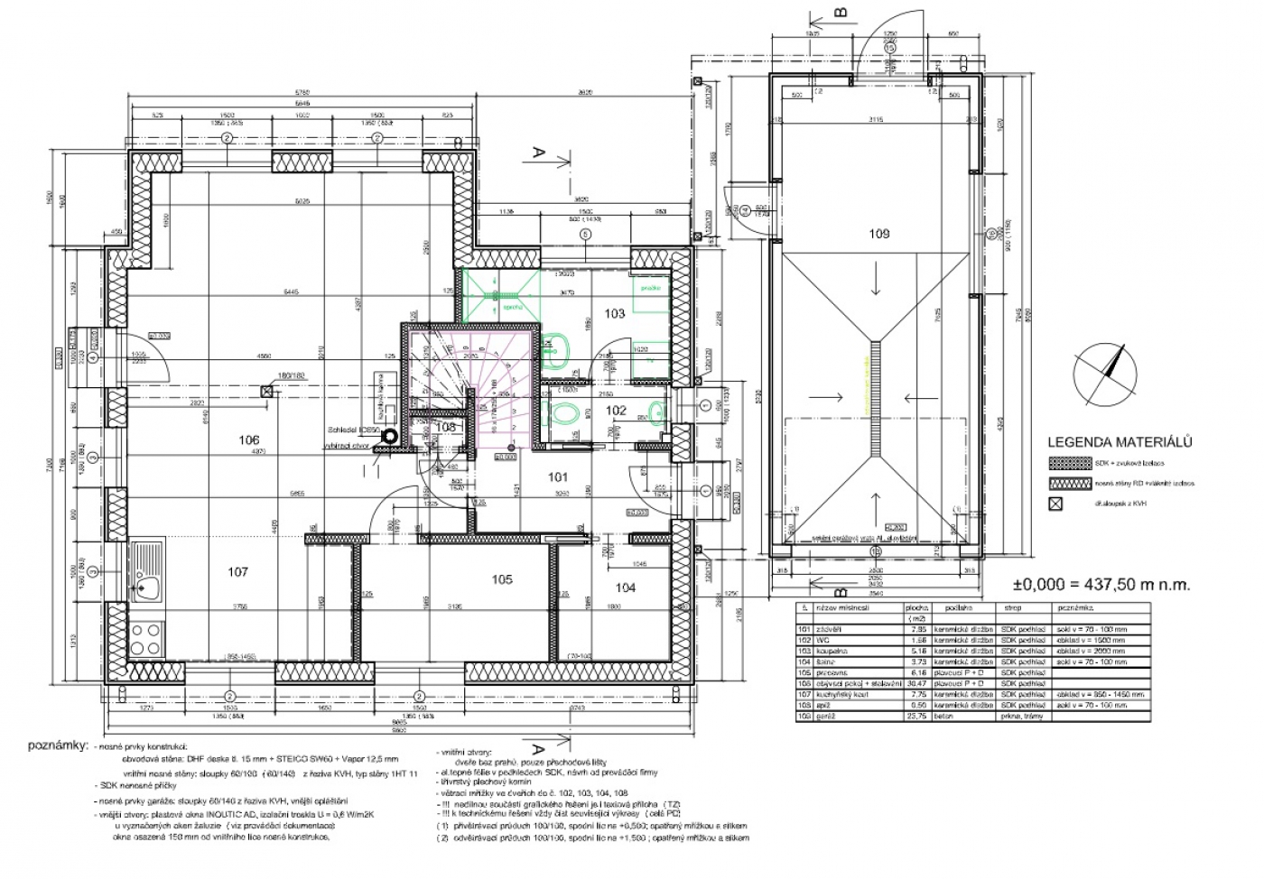
Dřevostavba patrová Lány 2017 Dřevostavba patrová Lány 2017 Menší dvoupatrová dřevostavba pro tříčlennou rodinu vyrostla v nové zástavbě v Lánech. Původně byla vyprojektována jako dřevostavba s pultovou střechou. Stavební úřad nakonec toto řešení nepovolil a aby mohla být stavba realizována, musel zákazník ustoupit a dřevostavba tak byla postavena se sedlovou střechou.

Finální foto
Finální foto
Finální foto
Finální foto
    +420 603 449 540