Patrové domy

Domů ›   Realizace   ›   Patrové domy

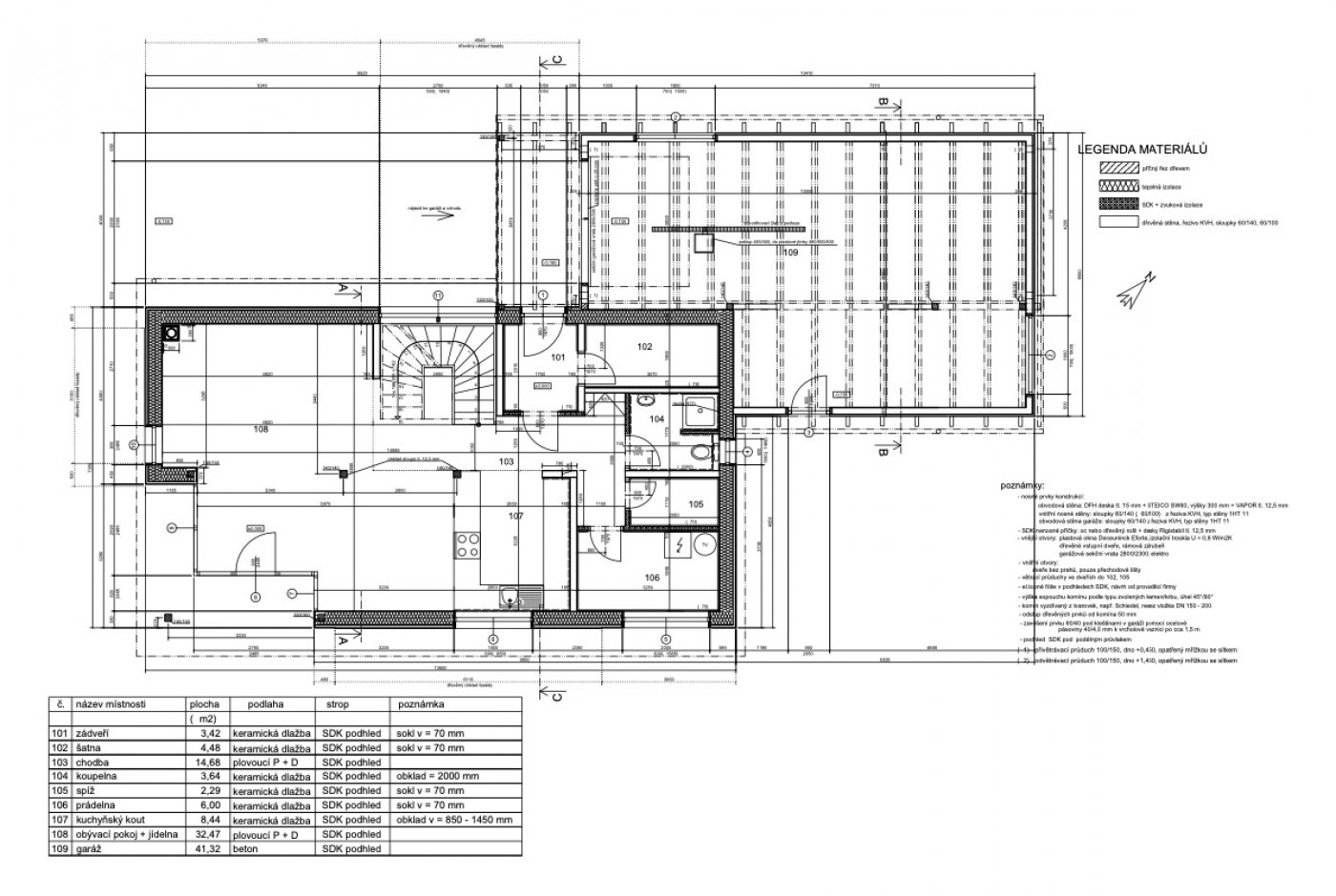
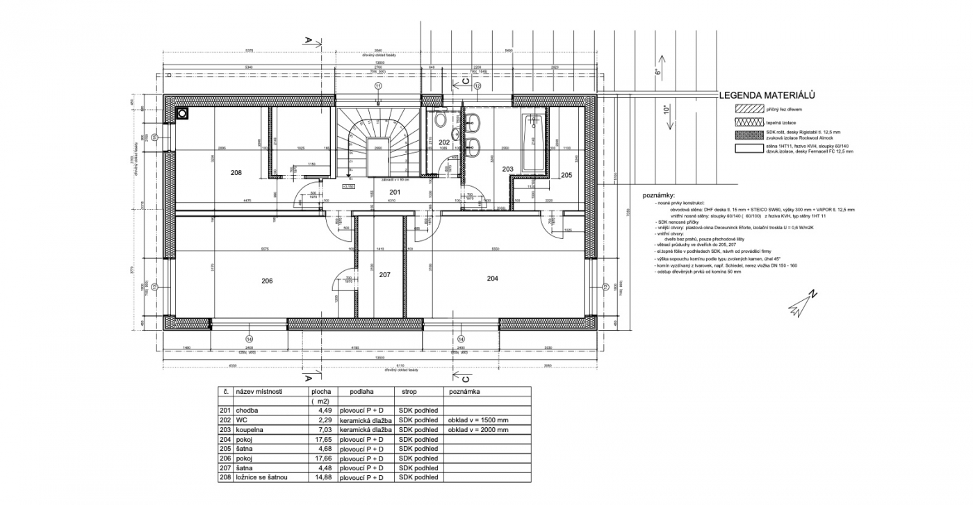
Dřevostavba patrová Čížkovice 2014 Dřevostavba patrová Čížkovice 2014 Dvoupatrová dřevostavba v moderním stylu má atypický vzhled a na konstrukční řešení náročný prosklený roh do hlavní obývací části. Zákazníci si potrpí na čistý a jednoduchý design. Objednávalo se např. kovové schodiště na míru, které tvoří jeden z výrazných prvků prvního podlaží. Moderní vzhled dřevostavby zvenku určuje pultová střecha. Dřevostavba má fasádu v kombinaci s dřevoobkladem. Na dřevostavbu pak navazuje prostorná garáž, kterou si zákazníci přáli zároveň používat jako malou dílnu, část garáže je tedy oddělená zateplená a je do ní přivedena voda.

    +420 603 449 540