Patrové domy

Domů ›   Realizace   ›   Patrové domy

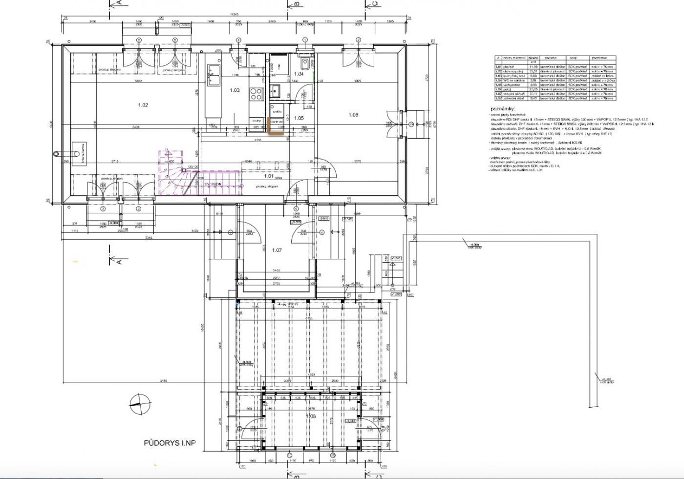
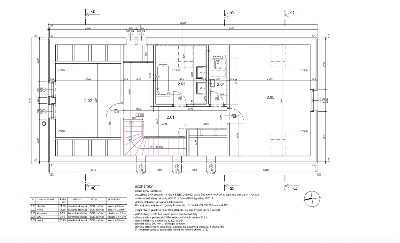
Dřevostavba patrová Brozany nad Ohří 2021 Dřevostavba patrová Brozany nad Ohří 2021 Tato dvoupatrová dřevostavba vyrostla ve stejné ulici jako jeho o rok mladší bratr. Moderní a neotřelý vzhled mu propůjčila sedlová střecha bez přesahů. V domě bylo zrealizováno několik zajímavých a neotřelých prvků. Ve střeše je např. vetknuté atypické panoramatické okno. V přízemí pak bylo použito fixní zasklení předsazenoumontáží, čímž bylo docíleno nulových tepelných mostů. Dřevostavba bude sloužit pro mladý aktivní pár a na přání zákazníků v něm byla zrealizována tělocvična, ve které majitelka povede své cvičební hodiny a v budoucnu dobře plnit zároveň funkci herny pro děti. Pod schodištěm je vetknutý na míru zhotovený pracovní kout pro zákazníka.

    +420 603 449 540