Bungalovy

Domů ›   Realizace   ›   Bungalovy

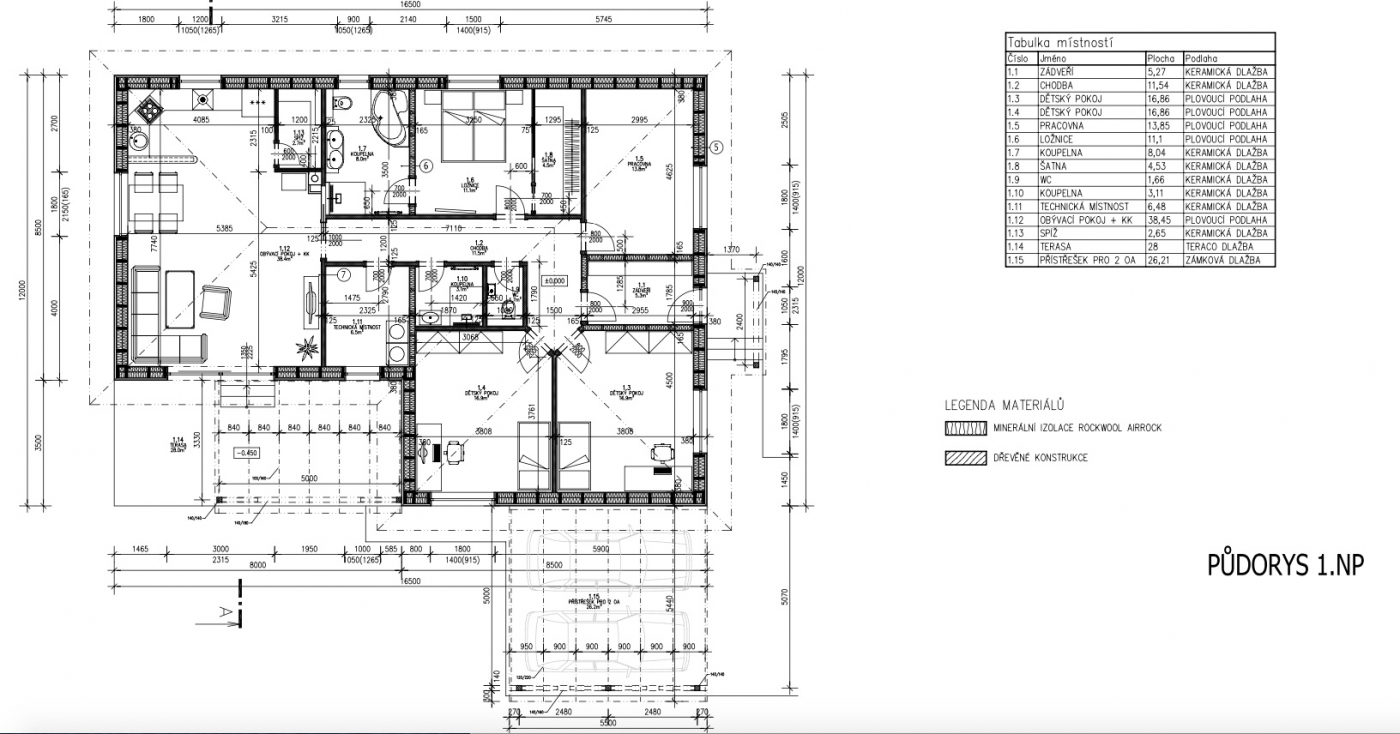
Dřevostavba bungalov Úvaly 2018 Dřevostavba bungalov Úvaly 2018 Velká a členitá dřevostavba v příjemné pražské části vyrostla na místě bývalé rekreační chaty v husté zástavbě starších rodinných domů. Jednalo se o logisticky náročnější akci. Majitelé si od nás následně nechali zhotovit kryté pergolové sezení s dřevěnou terasou, stání pro dva vozy.

Finální foto
Finální foto
Finální foto
Finální foto
Finální foto
    +420 603 449 540