Bungalovy

Domů ›   Realizace   ›   Bungalovy

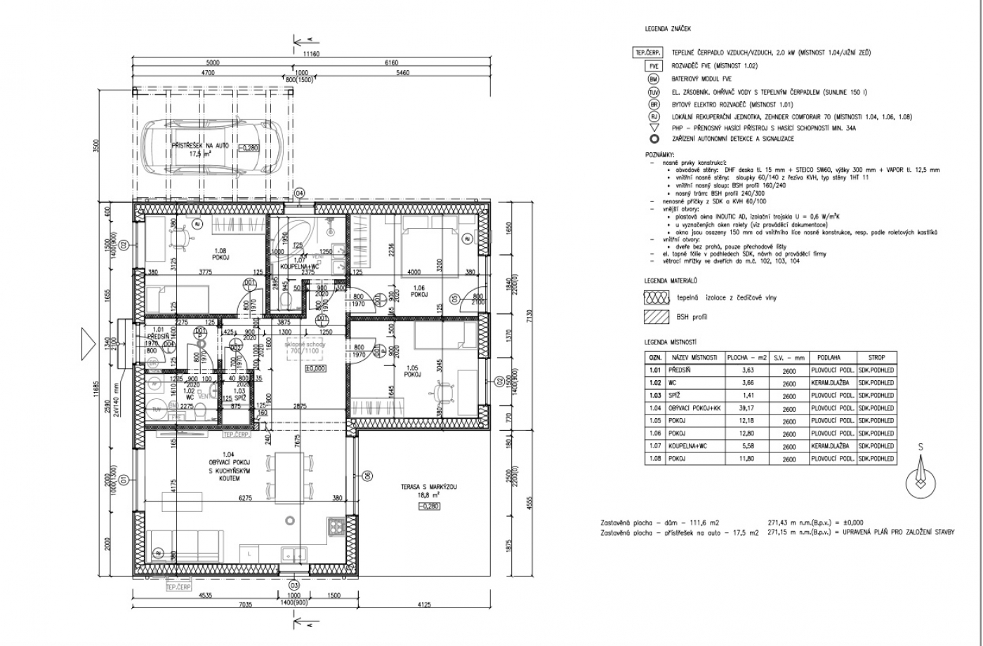
Dřevostavba bungalov Skorotice 2023 Dřevostavba bungalov Skorotice 2023 Bungalov, který byl zrealizován pro čtyřčlenou rodinu v nové zástavbě v Ústí nad Labem, Skorotice. Půdorys domu vychází z našeho oblíbeného a několikrát postaveného bungalovu Mayo 120 m2. Zákazníci si přáli dodat domu moderní a neotřelý vzhled, byla tedy vyprojektována atypická pultová střecha. Dům má přípravu pro lokální rekuperaci.

    +420 603 449 540