Bungalovy

Domů ›   Realizace   ›   Bungalovy

.

Dřevostavba bungalov Podlusky 2016 Dřevostavba bungalov Podlusky 2016 Zajímavá dřevostavba v kombinaci s dřevoobkladem, která má z jedné strany krásný výhled na České středohoří a z druhé na horu Říp. Dům má střešní konstrukci (ač to není na první pohled patrné) složenou ze dvou částí. Nad částí, kde jsoíu v interiéru rovné stropy, je zhotoven vazník a protože majitelé si přáli v obývací části spojené s kuchyní vytvořit "katedrálu" tzn. přiznat strop až do 5 m výšky, byl nad touto částí domu zhotoven krov.

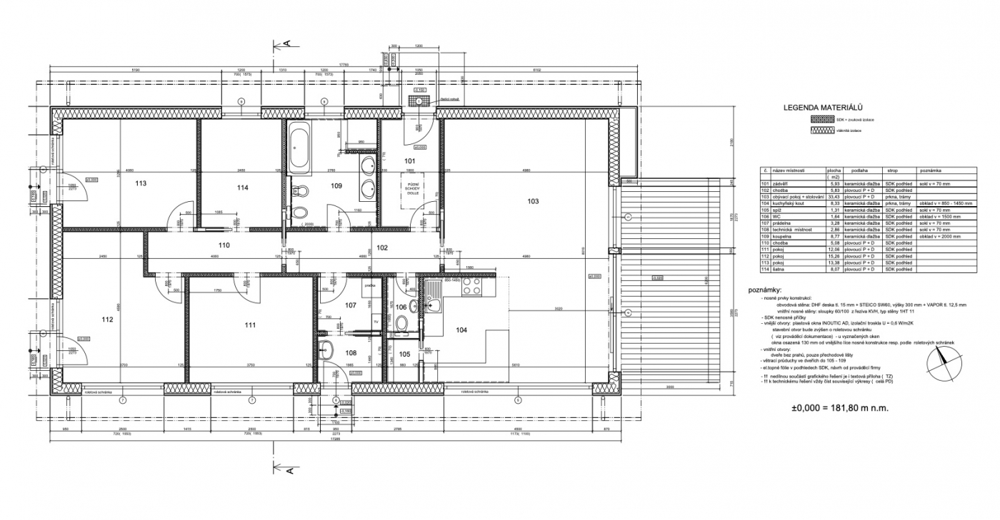
Půdorys dřevostavby
Vizualizace
Vizualizace
Final
Final
Final
    +420 603 449 540