Bungalovy

Domů ›   Realizace   ›   Bungalovy

Vizualizace Dřevostavba bungalov Lipová 2024 Po dlouhé době jsme realizovali dřevostavbu na pro vás vzdálenějším místě. Byl to faktor, který jsme na počátku velmi zvažovali. Zákazníci byli ale natolik milí, vstřícní a pro nás rozhodnutí, že jsme do toho šli. Díky tomu jsme prožili čásr roku v úžasném prostředí šluknovském výběžku a zrealizovali příjemný bungalov, který obklopují pastviny a hluboké lesy. V průběhu stavby jsme se se zákazníky domluvili ještě na realizaci zimní zahrady, o kterou si zvětšili obytnou část a komfort při výhledech do přírody.

Vizualizace
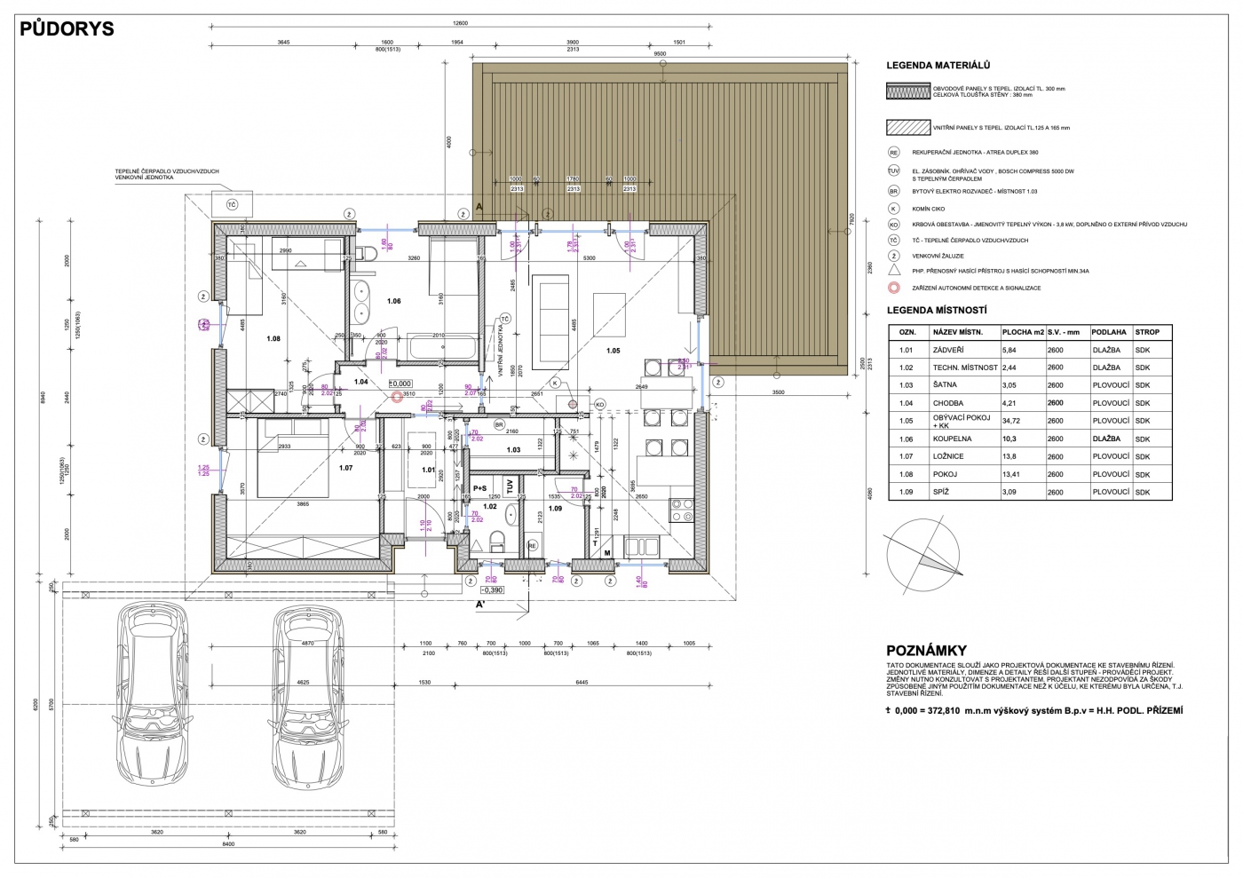
Půdorys domu
Průběh stavby
Průběh stavby
Final
Final
Final
    +420 603 449 540