Bungalovy

Domů ›   Realizace   ›   Bungalovy

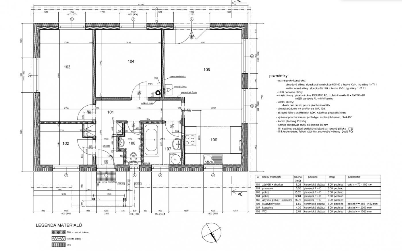
Dřevostavba bungalov Ledčice 2016 Dřevostavba bungalov Ledčice 2016 V této obci jsme měli zrealizované již dvě dřevostavby, proto jsme se sem rádi vrátili i po třetí. Majitel si přál postavit menší domek pro sebe a svou přítelkyni. Ačkoli se pohybuje v oboru, kde hlavní roli hraje beton, zvolil pro své budoucí bydlení přesto dřevostavbu. Zadání bylo: jednoduchost, funkčnost a rychlost výstavby.

Půdorys dřevostavby Ledčice
Vizualizace dřevostavby
Vizualizace bungalovu
    +420 603 449 540