Bungalovy

Domů ›   Realizace   ›   Bungalovy

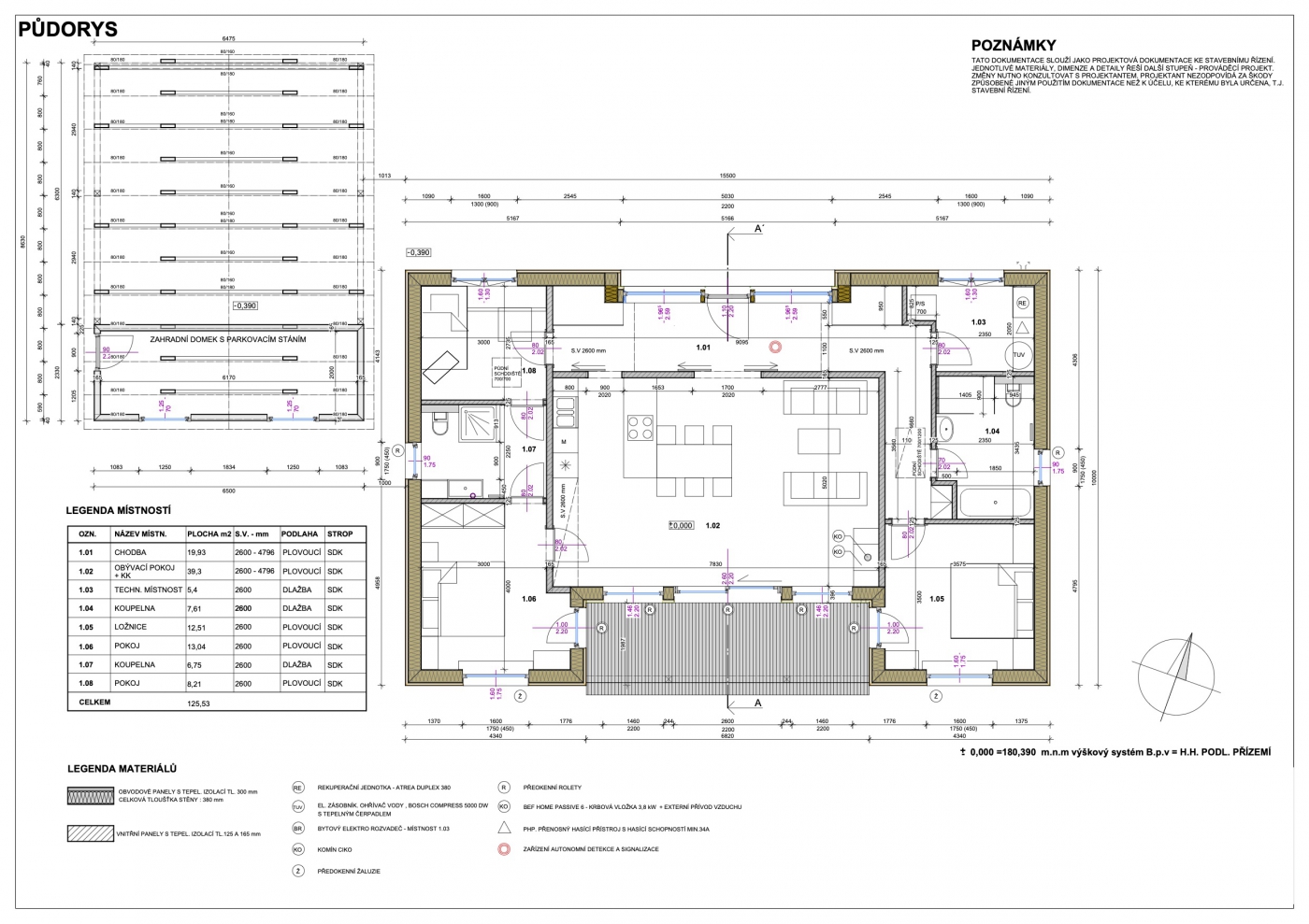
Vizualizace Dřevostavba bungalov Kyškovice 2024 V listopadu jsme předali nádhernou atypickou dřevostavbu v Kyškovicích se specifickými pohledovými prvky. Dominantou je obývací pokoj s kuchyní se zvýšeným stropem a přístupem na terasu. Ložnicím dominují sedací parapety s výhledem na horu Říp.

Vizualizace
Vizualizace
Půdorys
Řez
Průběh stavby
Průběh stavby
Průběh stavby
Průběh stavby
Jirková předání
Jirková předání
Jirková předání
Jirková předání
    +420 603 449 540