Bungalovy

Domů ›   Realizace   ›   Bungalovy

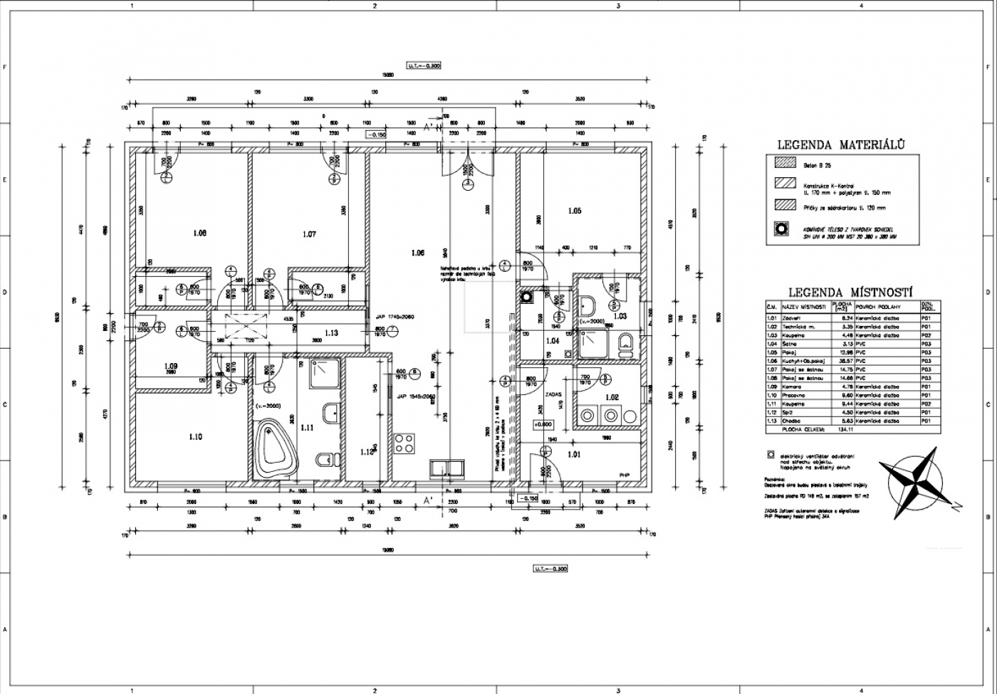
Dřevostavba bungalov Habrovice 2019 Dřevostavba bungalov Habrovice 2019 Jednoduchý a funkční bungalov v malebné části předměstí Ústí nad Labem s výhledem na rybník. Majitelé si přáli část prací v domě realizovat svépomocí, měli možnost mít k ruce tatínka fachmana. Domluvili jsme se tedy na tom, že koupelny si obloží sami, dům si vytmelí, vybrousí a vymalují a následně si sami thotoví fasádu. My jsme pak následně nastoupili k dokončovacím pracím.

Půdorys dřevostavby
Vizualizace dřevostavby
Výstavba bungalovu
    +420 603 449 540