Bungalovy

Domů ›   Realizace   ›   Bungalovy

Dřevostavba bungalov Chrást u Tišic 2018 Dřevostavba bungalov Chrást u Tišic 2018 Pohodlná a vysněná dřevostavba pro starší pár, který chce trávit nerušené chvíle odpočinku. Majitelé zahradu, na které dřevostavba vyrostla používali k rekuperaci a odpočinku už před výstavbou, tzn. nespornou výhodou bylo, že po nastěhování už měli vybudovanou zahradu včetně bazénu a venkovního posezení. S majiteli jsme postupně rozšířili seznam dodávaných prací kromě domu i na zhotovení garáže pro dva vozy, zpevněné venkovní plochy, terasu a ploty.

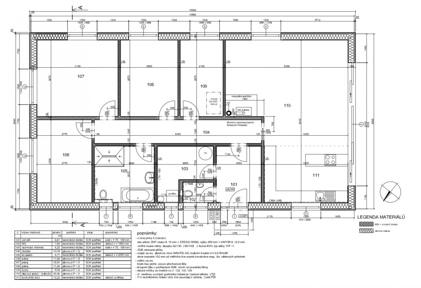
Půdorys dřevostavby
Vizualizace dřevostavby
Výstavba dřevostavby
Finální dřevostavba
Kuchyňský kout dřevostavby
    +420 603 449 540