Bungalovy

Domů ›   Realizace   ›   Bungalovy

Dřevostavba bungalov Černouček 2018 Dřevostavba bungalov Černouček 2018 Malá dřevostavba pro starší pár, vyrostla v proluce mezi stávající zástavbou rodinnými domy. Velký benefit skrýtá krásný výhled z několika oken na horu Říp. Majitel, pracuje v podobném oboru a byl náročný na technické detaily a o vše se velmi dopodrobna zajímal. Také byl kladem důraz na termín předání, který jsme dokonce o 14 dní předběhli.

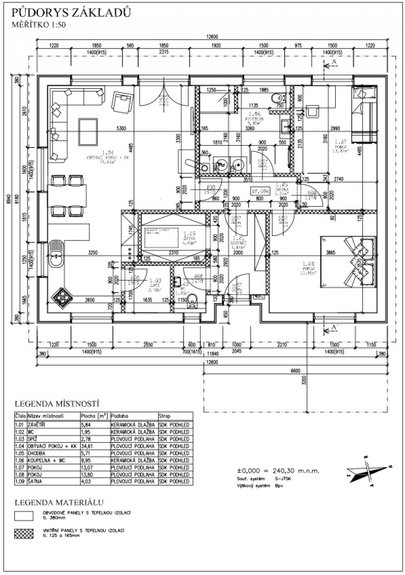
Půdorys dřevostavby
Pozemek dřevostavby
Vizualizace bungalovu
Výstavba dřevostavby
Dřevostavba Černouček
dřevostavba bungalov
Zahrada bungalov
    +420 603 449 540