Bungalovy

Domů ›   Realizace   ›   Bungalovy

Dřevostavba Bungalov Bohdankov 2016 Dřevostavba bungalov Bohdánkov 2016 Naše nejmenší zrealizovaná dřevostavba pro starší paní, která chtěla být v důchodu na blízku své dceři a vnoučatům, která žije v Libereckém kraji v půvabné dědině obklopené lesy. Na zahradě velkého domu tak vyrostla malá 1+1 dřevostavba, která své majitelce skýtá kontakt s rodinou, ale také nerušené soukromí.

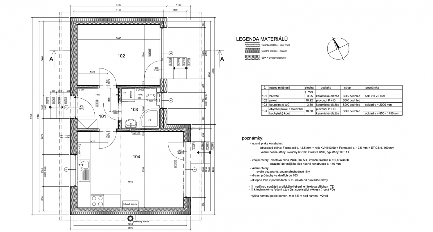
Půdorys dřevostavby
    +420 603 449 540