Bungalovy

Domů ›   Realizace   ›   Bungalovy

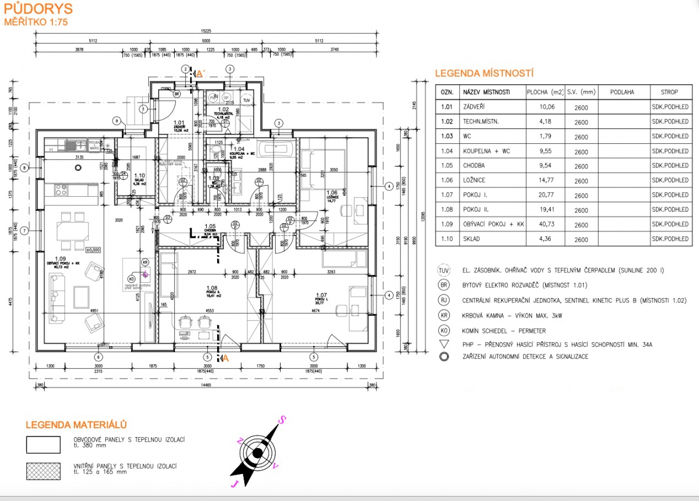
Dřevostavba Bílá Hlína 2020 Dřevostavba bungalov Bílá Hlína 2020 Tato dřevostavba vyrostla v malé obci nedaleko...... Jedná se o pasivní dřevostavbu pro čtyřčlennou rodinu se dvěma malými dětmi. Přání majitelů bylo, nepoškodit výstavbu vzrostlý sed, do kterého je dům zasazen, což se nám podařilo. Protože majitelé chtěli docílit vesnického vzhledu dřevostavby, použili jsme na fasádě šambrány s hladší omítkou.

půdorys dřevostaveb
Dřevostavba Bílá Hlína
Bungalov Bílá Hlína
Bungalov Bílá Hlína
Chodba Bungalovu
Obávací pokoj dřevostavby
    +420 603 449 540